Bản vẽ thiết kế văn phòng là nền tảng cho một không gian làm việc khoa học, tiện nghi và đúng với nhu cầu vận hành thực tế. Một bộ bản vẽ văn phòng làm việc được chuẩn bị kỹ lưỡng sẽ giúp tối ưu diện tích, kiểm soát chi phí và hỗ trợ quá trình thi công diễn ra trôi chảy. Trong bài viết này, Idesko sẽ cùng bạn tìm hiểu bản vẽ thiết kế văn phòng gồm những gì, các mẫu bản vẽ văn phòng đẹp và quy trình triển khai hiệu quả cho doanh nghiệp.
1. Bản vẽ thiết kế văn phòng là gì?
Bản vẽ thiết kế văn phòng là bộ hồ sơ thể hiện đầy đủ cách tổ chức không gian, vật liệu, nội thất và hệ thống kỹ thuật trong mặt bằng. Nhờ đó, kiến trúc sư, chủ đầu tư, nhà thầu và các bên liên quan có cùng cơ sở để phối hợp triển khai dự án.
Về tổng quan, bản vẽ thiết kế văn phòng giúp hạn chế hiểu sai phương án trong quá trình thi công. Doanh nghiệp cũng có thể hình dung rõ không gian sau khi hoàn thiện, từ đó kịp thời điều chỉnh trước khi chốt phương án đầu tư và triển khai thi công.

Tại sao phải có bản vẽ thiết kế văn phòng?
- Tối ưu diện tích và công năng: Giúp phân chia khu vực hợp lý, tận dụng tối đa diện tích, bố trí chỗ ngồi và không gian làm việc phù hợp với mô hình vận hành.
- Kiểm soát chi phí: Bản vẽ thiết kế văn phòng càng rõ ràng, khối lượng thi công càng dễ bóc tách, từ đó hạn chế phát sinh ngoài dự kiến.
- Đảm bảo an toàn kỹ thuật: Các bản vẽ kỹ thuật điện, điều hòa, cấp thoát nước, PCCC được tính toán trước, giảm rủi ro trong quá trình thi công và vận hành.
- Dễ dàng nâng cấp trong tương lai: Khi doanh nghiệp cần cải tạo hoặc mở rộng, bản vẽ văn phòng làm việc là tài liệu tham chiếu quan trọng để lên phương án mới mà không bị gián đoạn hoạt động.
2. Bản vẽ thiết kế văn phòng gồm những gì?
Bản vẽ thiết kế văn phòng không chỉ là mặt bằng bố trí chỗ ngồi mà là một bộ hồ sơ tổng hợp nhiều loại bản vẽ khác nhau. Nắm rõ từng loại bản vẽ giúp doanh nghiệp làm việc hiệu quả hơn với đơn vị thiết kế, đồng thời kiểm soát tốt chất lượng thi công.
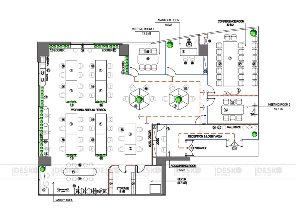
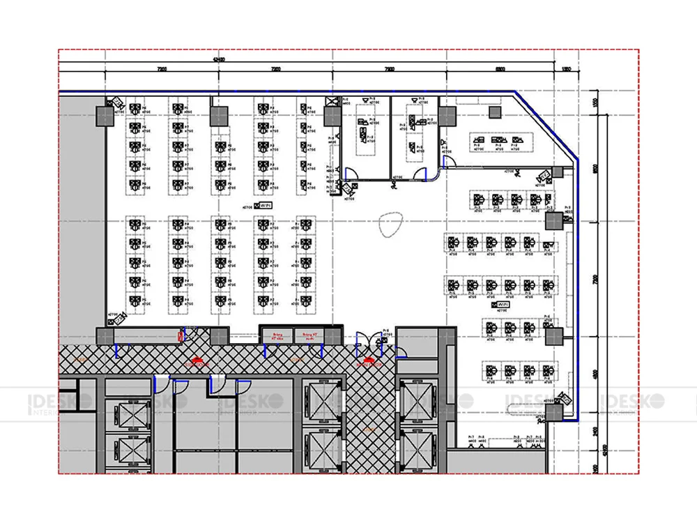
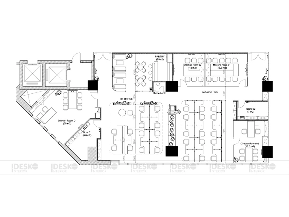
2.1 Bản vẽ bố trí mặt bằng (layout văn phòng)
Đây là bản vẽ thể hiện cách phân chia không gian chính trong văn phòng và các khu chức năng khác. Layout văn phòng còn cho thấy rõ số lượng chỗ ngồi, lối đi chính, vị trí các cụm bàn và các điểm nhấn quan trọng. Nhờ đó, doanh nghiệp dễ dàng kiểm tra xem không gian đã phù hợp với mô hình tổ chức, văn hóa và quy mô nhân sự hay chưa.

2.2 Bản vẽ kiến trúc chi tiết
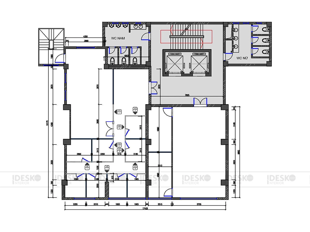
Bản vẽ kiến trúc chi tiết bao gồm mặt bằng trần, sàn, vách, mặt bằng bố trí nội thất… Kiến trúc sư thể hiện rõ kích thước, cao độ, vị trí lắp đặt và chủng loại vật liệu hoàn thiện. Đây là cơ sở để đội thi công triển khai đúng theo hồ sơ, đảm bảo các hạng mục được thi công và lắp đặt chính xác.

2.3 Bản vẽ phối cảnh 3D
Phối cảnh 3D mô tả không gian văn phòng dưới dạng hình ảnh, thể hiện rõ màu sắc, ánh sáng, chất liệu và phong cách tổng thể. Nhờ đó, doanh nghiệp và các bên liên quan dễ hình dung diện mạo văn phòng sau khi hoàn thiện. Đây cũng là cơ sở để thống nhất về định hướng thẩm mỹ trước khi triển khai.

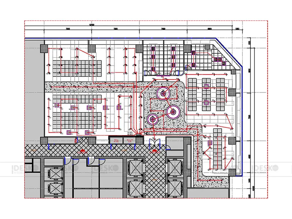
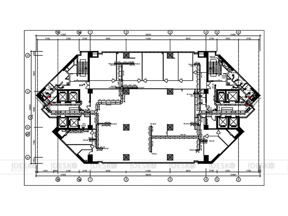
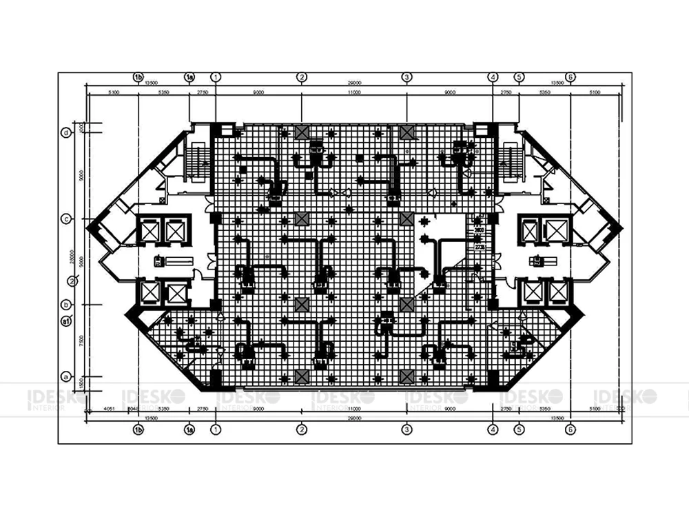
2.4 Bản vẽ hệ thống kỹ thuật
Nhóm bản vẽ này thể hiện cách bố trí hệ thống điện, mạng, điều hòa, chiếu sáng và các hạng mục kỹ thuật khác trong mặt bằng văn phòng. Đây là phần đặc biệt quan trọng, giúp đội thi công triển khai đúng kỹ thuật và đảm bảo hệ thống vận hành ổn định sau bàn giao.
Bản vẽ mặt bằng điện mạng
Bản vẽ này thể hiện vị trí ổ cắm, tủ điện, tuyến dây cấp điện, ổ mạng, tủ rack và các điểm đặt thiết bị công nghệ thông tin. Qua đó, công trình được bố trí đủ nguồn điện, hạ tầng mạng ổn định và đáp ứng yêu cầu an toàn khi vận hành.

Bản vẽ mặt bằng chiếu sáng
Bản vẽ mặt bằng chiếu sáng thể hiện vị trí, chủng loại đèn và cách bố trí ánh sáng theo từng khu vực trong văn phòng. Thiết kế chiếu sáng tốt giúp đảm bảo ánh sáng trong không gian, hạn chế chói lóa và đồng thời tối ưu mức tiêu thụ điện năng.

Bản vẽ mặt bằng điều hòa – thông gió
Bản vẽ mặt bằng điều hòa – thông gió thể hiện vị trí dàn lạnh, miệng gió cấp, miệng gió hồi, ống gió… Bản vẽ giúp đảm bảo không khí mát và thoáng, tránh gió thổi trực tiếp vào vị trí ngồi, hạn chế cảm giác khó chịu cho nhân sự.
Bản vẽ mặt bằng PCCC
Bản vẽ mặt bằng PCCC thể hiện vị trí đầu báo khói, đầu phun sprinkler, loa, đèn exit và đường ống chữa cháy… Đây là phần không thể thiếu trong bộ bản vẽ thiết kế thi công, đặc biệt khi làm việc trong các tòa nhà văn phòng. Nhờ bản vẽ này, việc thi công hệ thống phòng cháy chữa cháy đúng yêu cầu tòa nhà trở nên dễ dàng hơn, đồng thời phục vụ cho công tác nghiệm thu PCCC sau này.
Bản vẽ mặt bằng cấp thoát nước
Bản vẽ mặt bằng cấp thoát nước dùng cho các văn phòng có khu pantry, khu rửa hoặc cải tạo khu vệ sinh. Trên bản vẽ, kiến trúc sư và kỹ sư thể hiện vị trí chậu rửa, thiết bị vệ sinh, đường ống cấp nước và thoát nước. Bản vẽ hệ thống cấp thoát nước giúp thi công đúng kỹ thuật, tránh ảnh hưởng đến hệ thống cấp thoát nước chung của tòa nhà.

3. Các mẫu bản vẽ thiết kế văn phòng đẹp, tối ưu công năng
Tùy diện tích và mô hình vận hành, cách tổ chức mặt bằng văn phòng sẽ có sự khác nhau. Dưới đây là một số nhóm bản vẽ thiết kế văn phòng theo diện tích tham khảo, giúp doanh nghiệp có hình dung sơ bộ trước khi làm việc với đơn vị thiết kế.
3.1 Bản vẽ văn phòng nhỏ dưới 250m2
Với diện tích dưới 25m2, bản vẽ văn phòng làm việc thường tập trung vào khu làm việc chung, phòng họp nhỏ, quầy lễ tân gọn và một khu pantry tích hợp. Mục tiêu là tối đa số chỗ ngồi nhưng vẫn giữ được lối đi thông thoáng và không gian làm việc thoải mái. Thiết kế văn phòng nhỏ phù hợp với startup, văn phòng đại diện hoặc các doanh nghiệp nhỏ.
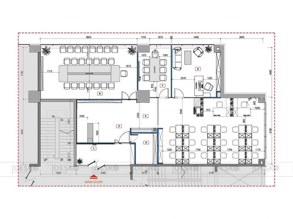
3.2 Bản vẽ văn phòng 250 – 500m2
Ở diện tích này, bản vẽ thiết kế văn phòng có thể bố trí các không gian rõ ràng và thêm 1 số khu vực chức năng. Cách phân khu bắt đầu rõ ràng hơn so với mặt bằng nhỏ. Nhóm bản vẽ văn phòng này phù hợp với doanh nghiệp đang mở rộng, cần tách một số phòng chức năng nhưng vẫn muốn giữ không gian mở và dễ quản lý.
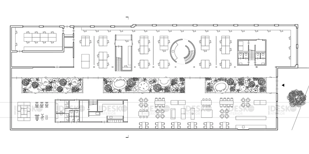
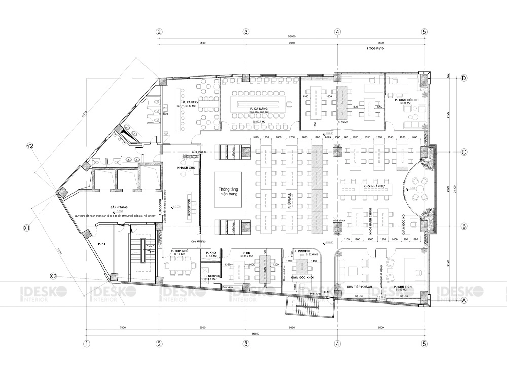
3.3 Bản vẽ văn phòng 500 – 1000m²
Diện tích này có ặt bằng đủ rộng để tổ chức nhiều khu chức năng: khu làm việc riêng, cụm phòng họp, phòng lãnh đạo, pantry lớn, khu thư giãn và khu lưu trữ… Bản vẽ thiết kế văn phòng ở cấp độ này cần xử lý kỹ luồng di chuyển và mức độ riêng tư cho từng khu.
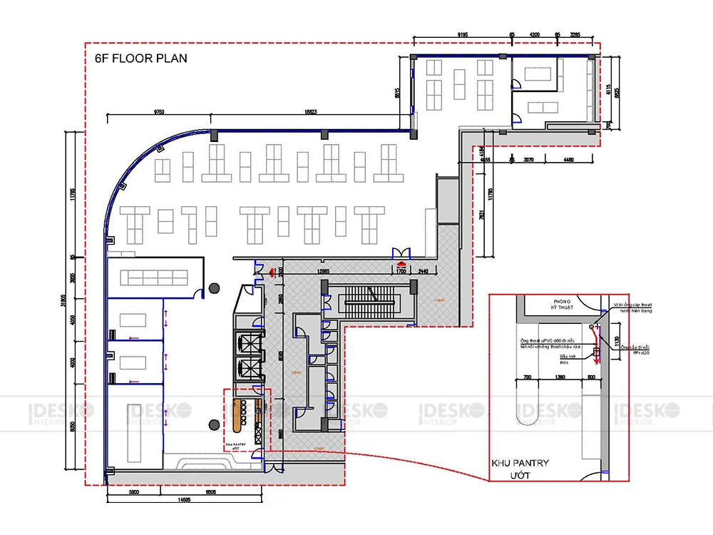
3.4 Bản vẽ văn phòng diện tích lớn trên 1000m²
Đây thường là các bản vẽ thiết kế văn phòng cho trụ sở chính, văn phòng tổng hoặc doanh nghiệp lớn. Trên bản vẽ, kiến trúc sư phải thể hiện rõ sơ đồ phân khu, hành lang giao thông nội bộ, có thêm các khu vực dành cho khách, khu training, kho và khu kỹ thuật. Thiết kế văn phòng trên 1000m2 cần tính tới sự linh hoạt trong cách bố trí.
4. Quy trình triển khai bản vẽ thiết kế văn phòng
Một quy trình rõ ràng giúp bản vẽ văn phòng làm việc bám sát nhu cầu thực tế, hạn chế sửa đi sửa lại và hỗ trợ thi công thuận lợi. Dưới đây là các bước triển khai thường gặp khi làm việc với đơn vị thiết kế chuyên nghiệp.
Bước 1: Khảo sát mặt bằng và nhu cầu sử dụng
Ở bước này, Idesko tiến hành thu thập thông tin về ngành nghề, quy mô nhân sự, mô hình làm việc, định hướng phát triển và ngân sách đầu tư. Đồng thời, đội ngũ kỹ thuật sẽ khảo sát hiện trạng mặt bằng, điều kiện tòa nhà, hệ thống kỹ thuật và các ràng buộc liên quan đến PCCC, thời gian thi công.
Bước 2: Thiết kế layout văn phòng
Dựa trên dữ liệu khảo sát, kiến trúc sư lên phương án mặt bằng bố trí nội thất, thể hiện phân khu chức năng, số lượng chỗ ngồi, lối đi, vị trí phòng ban. Bản vẽ thiết kế văn phòng dạng layout sẽ được trao đổi với doanh nghiệp, điều chỉnh qua vài vòng để chọn phương án tối ưu.
Bước 3: Thiết kế phối cảnh 3D
Sau khi chốt layout, kiến trúc sư phát triển phối cảnh 3D theo phong cách đã thống nhất. Bản vẽ thiết kế văn phòng ở bước này thể hiện rõ màu sắc, vật liệu, đồ nội thất và cảm giác không gian. Nhờ phối cảnh 3D, chủ đầu tư có cái nhìn trực quan về văn phòng tương lai, từ đó chốt phương án cuối cùng trước khi đầu tư thi công.
Bước 4: Triển khai hồ sơ kỹ thuật
Idesko triển khai bản vẽ kiến trúc nội thất như mặt bằng trần, sàn, chi tiết vách, nội thất. Đồng thời, các bản vẽ hệ thống kỹ thuật như điện, chiếu sáng, mạng, camera, điều hòa thông gió, cấp thoát nước và PCCC cũng được triển khai bám theo layout. Toàn bộ hồ sơ kỹ thuật cần tuân thủ tiêu chuẩn kỹ thuật, quy định của tòa nhà và các yêu cầu pháp lý liên quan.
Bước 5: Bàn giao và triển khai thi công
Khi hoàn thiện, toàn bộ bản vẽ thiết kế văn phòng sẽ được rà soát lại một lần nữa, sau đó bàn giao cho khách hàng hoặc đội thi công. Trường hợp Idesko trực tiếp thi công, doanh nghiệp chỉ làm việc với một đầu mối nên hạn chế sai lệch giữa bản vẽ văn phòng và công trình thực tế, đồng thời kiểm soát tốt hơn chi phí và tiến độ.
5. Idesko – Đơn vị thiết kế thi công văn phòng trọn gói
Idesko là đơn vị thiết kế và thi công văn phòng với hơn 20 năm kinh nghiệm, đã đồng hành cùng nhiều doanh nghiệp trong nước và quốc tế ở đa dạng lĩnh vực. Đội ngũ kiến trúc sư và kỹ sư luôn chú trọng xây dựng bản vẽ thiết kế văn phòng phù hợp với mô hình vận hành và văn hóa riêng của từng doanh nghiệp.
Idesko triển khai dịch vụ trọn gói từ tư vấn ý tưởng, lên layout, bản vẽ kiến trúc và MEP, phối cảnh 3D đến thi công và bàn giao. Doanh nghiệp làm việc với một đầu mối xuyên suốt, giúp thống nhất phương án, kiểm soát tiến độ và giảm sai lệch giữa thiết kế và thi công. Đồng thời, hồ sơ được chuẩn hóa theo từng hạng mục để dễ nghiệm thu, bảo trì và điều chỉnh sau này.
Các phương án bản vẽ văn phòng của Idesko luôn hướng tới sự cân bằng giữa công năng, thẩm mỹ và khả năng mở rộng trong tương lai. Nếu bạn đang cần một layout phù hợp với mặt bằng hiện có và định hướng phát triển sắp tới, đội ngũ Idesko luôn sẵn sàng tư vấn chi tiết.

6. FAQ – Câu hỏi thường gặp về bản vẽ thiết kế văn phòng
6.1 Văn phòng nhỏ có cần làm bản vẽ chi tiết không?
Văn phòng nhỏ vẫn nên có bản vẽ thiết kế văn phòng rõ ràng, ít nhất là layout mặt bằng và một số bản vẽ kỹ thuật cơ bản. Nhờ đó, doanh nghiệp tránh được việc sắp xếp chỗ ngồi chật chội, thiếu lối đi và lãng phí diện tích.
6.2 Thời gian hoàn thành bản vẽ thiết kế văn phòng mất bao lâu?
Thời gian hoàn thành phụ thuộc vào diện tích và mức độ yêu cầu chi tiết, nhưng thường dao động từ 1 đến 3 tuần cho một văn phòng diện tích vừa. Giai đoạn này bao gồm khảo sát, lên layout, duyệt phối cảnh 3D và triển khai các bản vẽ kỹ thuật cần thiết.
6.3 Bản vẽ thiết kế văn phòng thường gồm những phần nào?
Thông thường một bộ bản vẽ thiết kế văn phòng gồm layout bố trí mặt bằng, bản vẽ kiến trúc chi tiết, phối cảnh 3D và các bản vẽ hệ thống kỹ thuật như điện, chiếu sáng, điều hòa, cấp thoát nước và PCCC. Tùy quy mô dự án, hồ sơ có thể được tinh gọn hoặc mở rộng thêm.
6.4 Bản vẽ thiết kế văn phòng có dùng được cho việc hoàn công không?
Bản vẽ thiết kế văn phòng là cơ sở ban đầu để thi công, còn hồ sơ hoàn công sẽ cập nhật lại hiện trạng thực tế sau thi công. Nếu quá trình thi công bám sát thiết kế, việc lập bản vẽ hoàn công sẽ dễ dàng hơn vì có sẵn bản vẽ để đối chiếu và điều chỉnh.
6.5 Có thể yêu cầu chỉnh sửa bản vẽ nhiều lần trong quá trình thiết kế không?
Trong hợp đồng thiết kế thường có quy định về số lần chỉnh sửa để hai bên cùng bám theo. Doanh nghiệp nên góp ý tập trung theo từng vòng để tránh kéo dài thời gian và phát sinh chi phí khi chỉnh sửa quá nhiều ở giai đoạn muộn.
6.6 Idesko có hỗ trợ điều chỉnh bản vẽ từ đơn vị khác không?
Idesko có thể xem xét, tư vấn và điều chỉnh bản vẽ thiết kế văn phòng do đơn vị khác thực hiện nếu doanh nghiệp có nhu cầu. Tùy chất lượng hồ sơ hiện có, đội ngũ sẽ đề xuất hướng chỉnh sửa phù hợp để đảm bảo khả năng thi công, an toàn kỹ thuật và tối ưu công năng.
7. Kết luận
Bản vẽ thiết kế văn phòng là bước khởi đầu quyết định cách doanh nghiệp sử dụng không gian, kiểm soát chi phí thi công và đảm bảo sự tiện nghi trong suốt quá trình vận hành. Một bộ bản vẽ tốt giúp hạn chế rủi ro, giảm sửa chữa và tạo nền tảng cho những lần cải tạo tiếp theo.
Khi nắm rõ quy trình, các hạng mục và những mẫu bản vẽ văn phòng làm việc phù hợp, doanh nghiệp sẽ tự tin hơn khi làm việc với đơn vị thiết kế. Nếu bạn đang cần một phương án bản vẽ thiết kế văn phòng khoa học, dễ thi công và sẵn sàng cho tương lai, hãy liên hệ Idesko để được tư vấn chi tiết cho dự án của mình.
Công ty TNHH Trang Trí Nội Thất Hoàn Mỹ (IDESKO)
▸ Địa chỉ: Tầng 2, số 9 Trung Liệt, Đống Đa, Hà Nội
▸ Hotline: 0911 199 929
▸ Email: hong.tran@idesko.com.vn
▸ Zalo: 0911 199 929
▸ Đăng ký nhận tư vấn tại đây
▸ Website: https://idesko.com.vn/
▸ Facebook: Indesko Interior
