Layout văn phòng là yếu tố quan trọng trong thiết kế nội thất doanh nghiệp, quyết định cách sắp xếp và vận hành của toàn bộ không gian làm việc. Một layout khoa học không chỉ giúp tối ưu diện tích, cải thiện năng suất mà còn truyền cảm hứng và tạo môi trường làm việc chuyên nghiệp. Trong bài viết này, Idesko sẽ cùng bạn tìm hiểu chi tiết khái niệm layout, các nguyên tắc bố trí hiệu quả và những xu hướng thiết kế nổi bật hiện nay.
1. Layout văn phòng là gì?
Layout văn phòng (hay còn gọi là Floor layout hoặc sơ đồ mặt bằng) là bản vẽ 2D thể hiện toàn bộ bố cục không gian làm việc với góc nhìn từ trên xuống. Bản vẽ này mô tả chi tiết cách phân chia khu vực chức năng, vị trí nội thất và lối di chuyển trong văn phòng.
Mục đích của layout là giúp doanh nghiệp và đơn vị thiết kế có cái nhìn tổng thể, trực quan trước khi thi công. Nhờ đó, đơn vị thiết kế và doanh nghiệp có thể đánh giá tính hợp lý của bố cục, khả năng di chuyển, cũng như sự liên kết giữa các khu vực chức năng.
Một layout được thiết kế khoa học giúp tối ưu hóa không gian, đảm bảo luồng di chuyển thuận tiện, hạn chế xung đột giữa các khu vực và nâng cao hiệu quả làm việc. Bên cạnh đó, layout còn thể hiện bản sắc và văn hóa doanh nghiệp thông qua cách sắp xếp không gian, lựa chọn màu sắc và phong cách thiết kế..

2. Nguyên tắc bố trí layout văn phòng hiệu quả
Một layout văn phòng tốt không chỉ đẹp về hình thức mà còn mang lại giá trị sử dụng cao, giúp nhân viên làm việc hiệu quả và doanh nghiệp vận hành trơn tru.
2.1 Tối ưu công năng theo nhu cầu sử dụng
Layout văn phòng cần được xây dựng dựa trên cơ cấu tổ chức và mô hình làm việc của doanh nghiệp. Các khu vực như phòng làm việc cá nhân, phòng họp, phone booth và khu vực chung cần được bố trí rõ ràng để đảm bảo tính tiện dụng.
Nếu không có sự phân tách hợp lý, tiếng ồn hoặc sự di chuyển qua lại có thể làm giảm khả năng tập trung của nhân viên. Vì vậy, việc phân vùng bằng vách ngăn, thảm sàn hoặc sự thay đổi vật liệu sẽ giúp không gian trở nên hiệu quả và linh hoạt hơn.
2.2 Giữ không gian thông thoáng, dễ di chuyển
Một trong những yếu tố quyết định đến trải nghiệm của nhân viên là sự thông thoáng. Lối đi giữa các khu vực cần được thiết kế đủ rộng, tránh làm gián đoạn luồng di chuyển. Ngoài ra, việc sắp xếp nội thất khoa học còn giúp luồng khí lưu thông tốt, mang lại cảm giác thoải mái và tạo năng lượng tích cực trong môi trường làm việc. Những khoảng trống hợp lý giữa bàn, ghế, tủ kệ… cũng giúp văn phòng trở nên gọn gàng và chuyên nghiệp hơn.

2.3 Đảm bảo tính thẩm mỹ và nhận diện thương hiệu
Layout văn phòng không chỉ thể hiện công năng mà còn thể hiện bản sắc thương hiệu. Màu sắc, vật liệu và phong cách trang trí nên đồng bộ với nhận diện thương hiệu của doanh nghiệp. Sự kết hợp hài hòa giữa logo, màu chủ đạo và chất liệu nội thất giúp không gian vừa thẩm mỹ, vừa mang giá trị truyền thông. Một văn phòng được thiết kế đẹp sẽ góp phần tạo ấn tượng tích cực với khách hàng và đối tác ngay từ lần đầu ghé thăm.
2.4 Tận dụng luồng không khí và ánh sáng tự nhiên
Ánh sáng tự nhiên và thông gió tốt là hai yếu tố quan trọng trong bố trí layout văn phòng. Việc bố trí khu làm việc gần cửa sổ, sử dụng vách kính hoặc tông màu sáng giúp ánh sáng lan tỏa đều khắp không gian. Không chỉ tiết kiệm điện năng, ánh sáng tự nhiên còn giúp tinh thần nhân viên thoải mái và nâng cao hiệu suất làm việc. Cùng với đó, hệ thống điều hòa và thông gió cần được bố trí hợp lý để duy trì môi trường làm việc dễ chịu.

3. Xu hướng thiết kế layout văn phòng hiện nay
Các doanh nghiệp ngày nay không chỉ quan tâm đến thẩm mỹ mà còn chú trọng vào sự linh hoạt, bền vững và trải nghiệm nhân viên khi thiết kế layout văn phòng. Dưới đây là những xu hướng bố trí phổ biến hiện nay:
- Văn phòng mở đa chức năng: Thiết kế không gian mở giúp tăng khả năng kết nối, giao tiếp giữa các bộ phận và tối ưu diện tích sử dụng. Bố trí linh hoạt này đặc biệt phù hợp với doanh nghiệp trẻ hoặc startup năng động.
- Tích hợp yếu tố xanh: Đưa thiên nhiên vào không gian làm việc thông qua cây xanh, vật liệu và ánh sáng tự nhiên. Thiết kế văn phòng xanh này giúp giảm căng thẳng, mang lại cảm giác thư giãn và tăng năng lượng tích cực.
- Ứng dụng công nghệ thông minh: Văn phòng được trang bị hệ thống chiếu sáng, điều hòa và thiết bị IoT giúp tự động hóa và tiết kiệm năng lượng. Đây là xu hướng của các doanh nghiệp hiện đại muốn nâng cao trải nghiệm làm việc.
- Thiết kế hybrid: Sau đại dịch, mô hình làm việc kết hợp giữa trực tiếp và từ xa ngày càng phổ biến. Layout văn phòng hybrid cho phép bố trí không gian linh hoạt, dễ dàng thay đổi theo nhu cầu sử dụng.

Nhìn chung, các xu hướng thiết kế layout hiện nay đều hướng tới việc tối ưu trải nghiệm con người, khuyến khích sự sáng tạo và phản ánh văn hóa doanh nghiệp trong từng chi tiết không gian.
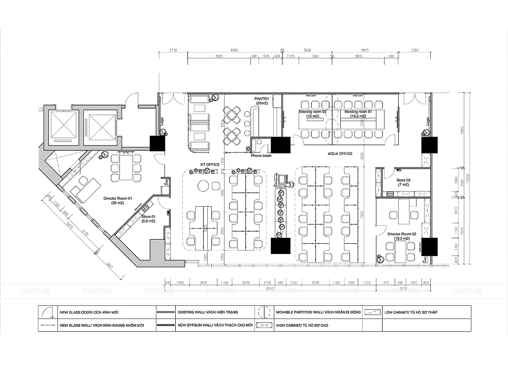
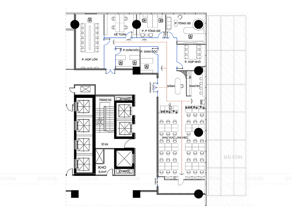
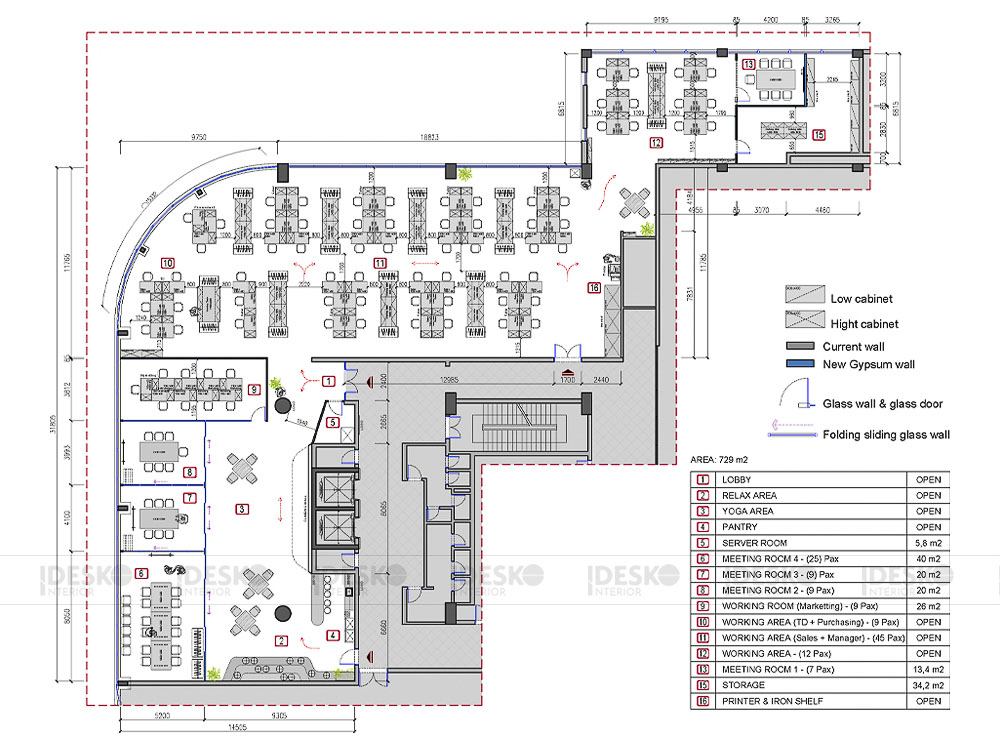
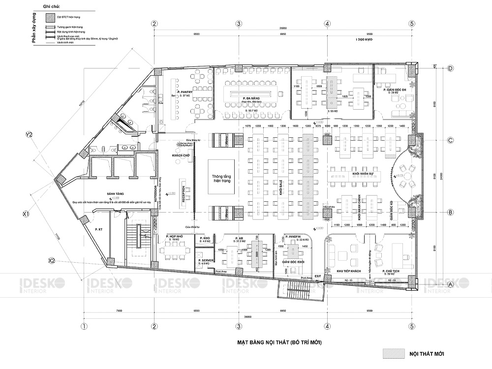
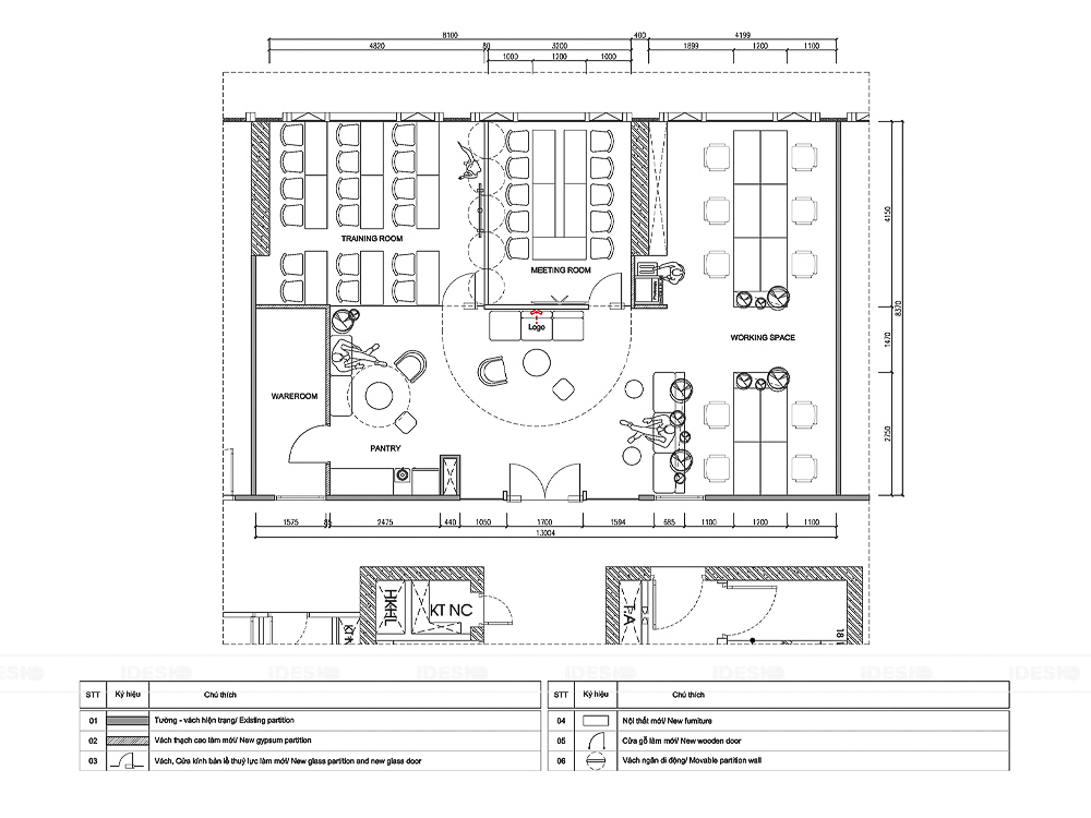
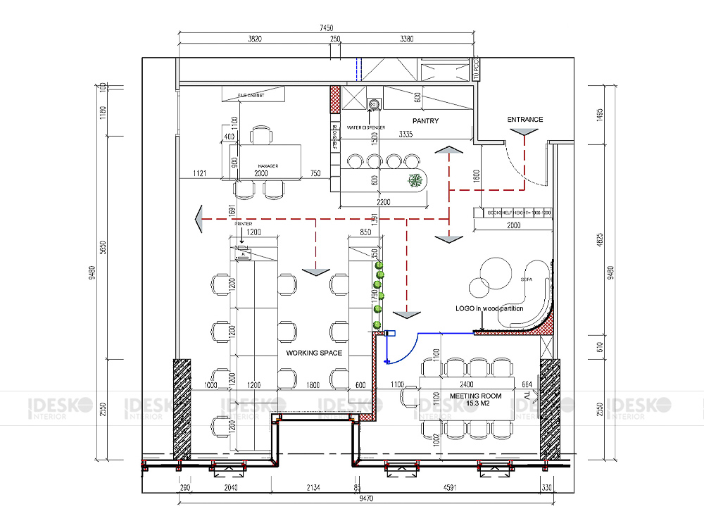
4. 10+ mẫu layout văn phòng do Idesko thực hiện
Tại Idesko, mỗi dự án thiết kế văn phòng đều được cá nhân hóa theo nhu cầu của khách hàng. Từ các văn phòng diện tích nhỏ cho startup đến không gian hàng nghìn mét vuông cho tập đoàn lớn, Idesko luôn chú trọng sự hài hòa giữa công năng và thẩm mỹ.
5. Idesko – Giải pháp thiết kế layout văn phòng chuyên nghiệp
Với hơn 20 năm kinh nghiệm trong lĩnh vực thiết kế và thi công nội thất văn phòng, Idesko là đối tác tin cậy của nhiều doanh nghiệp lớn trong và ngoài nước. Chúng tôi không chỉ thiết kế không gian làm việc đẹp, hiện đại mà còn chú trọng vào yếu tố công năng, phong thủy và tính nhận diện thương hiệu trong từng dự án.
Chúng tôi mang đến giải pháp trọn gói, bao gồm: tư vấn, khảo sát, lên layout, thiết kế 3D, lập hồ sơ kỹ thuật, thi công và bàn giao. Mỗi bản thiết kế được cá nhân hóa theo đặc thù hoạt động và ngân sách của doanh nghiệp, đảm bảo không gian vừa tiện nghi, vừa tối ưu chi phí.
Với định hướng “không gian làm việc là nền tảng phát triển của doanh nghiệp”, Idesko cam kết mang đến những layout văn phòng hiệu quả, hiện đại và linh hoạt. Mỗi mét vuông được sử dụng hợp lý, góp phần nâng cao trải nghiệm làm việc, thúc đẩy tinh thần sáng tạo và năng suất của đội ngũ nhân viên.
6. Kết luận
Layout văn phòng là yếu tố cốt lõi quyết định sự tiện nghi, hiệu quả và tính chuyên nghiệp của không gian làm việc. Một layout được thiết kế khoa học không chỉ giúp tối ưu diện tích, tăng năng suất mà còn thể hiện bản sắc và tầm nhìn của doanh nghiệp.
Nếu bạn đang tìm kiếm giải pháp thiết kế và thi công văn phòng hiệu quả, Idesko chính là đối tác uy tín, đáng tin cậy. Hãy liên hệ ngay hôm nay để được tư vấn và nhận giải pháp thiết kế tối ưu, giúp doanh nghiệp của bạn vận hành hiệu quả.
Công ty TNHH Trang Trí Nội Thất Hoàn Mỹ (IDESKO)
▸ Địa chỉ: Tầng 2, số 9 Trung Liệt, Đống Đa, Hà Nội
▸ Hotline: 0911 199 929
▸ Email: hong.tran@idesko.com.vn
▸ Zalo: 0911 199 929
▸ Đăng ký nhận tư vấn tại đây
▸ Website: https://idesko.com.vn/
▸ Facebook: Idesko Interior
